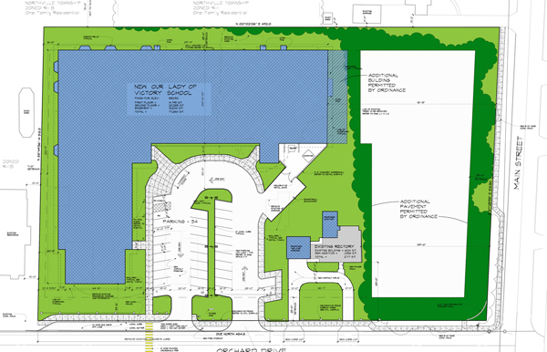
02864spaSITE