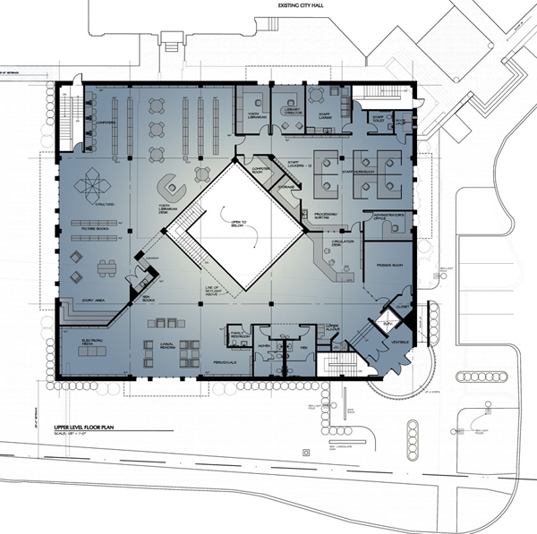
04884FloorPlan