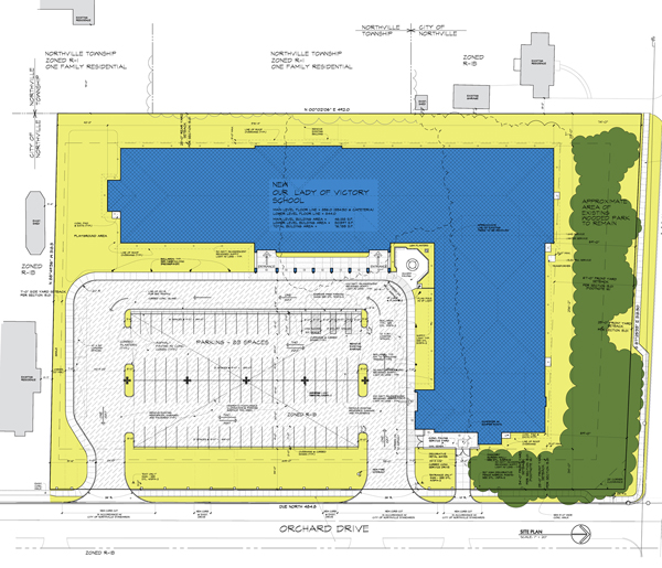
04886SPA1