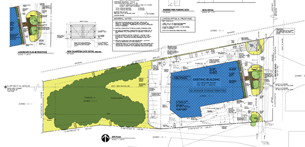
04887Site