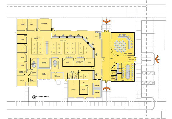
04889CityHall2