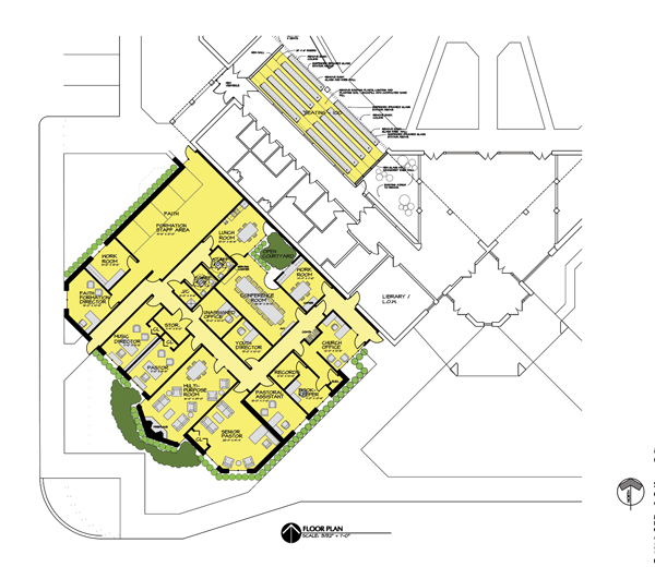
05900-A3