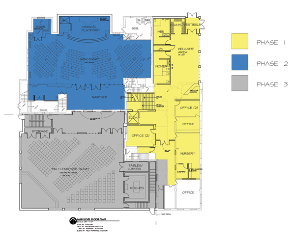
06904MainLevelPlan3