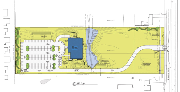
06905-Site