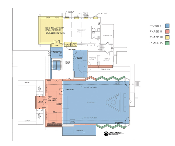
06911upper-level