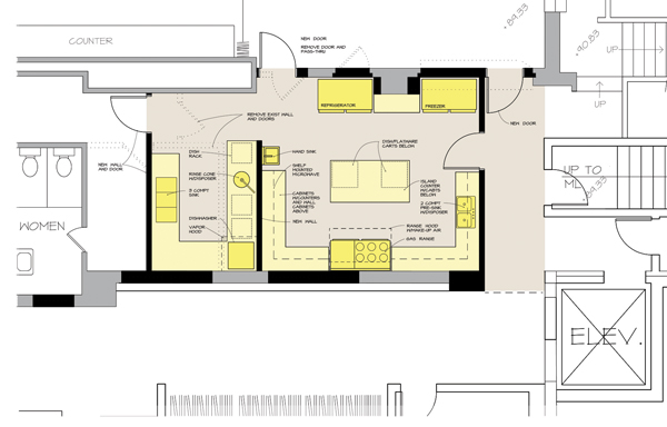
07920Kitchen