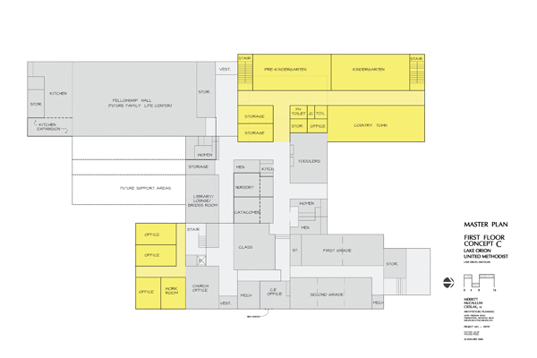
99797plan