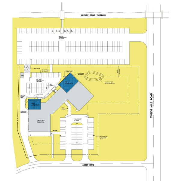
Site5