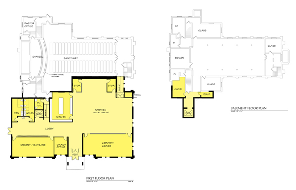
02849FloorPlan