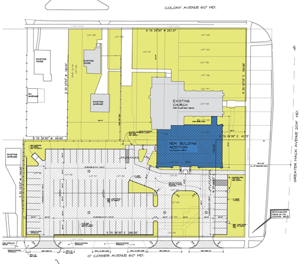
02849SPA1